Mengapa harus memilih “Pasundan Village Cibiru”
✓ Rumah murah dengan kwalitas bangunan terjamin.✓ Konsep Rumah tumbuh yang sudah disiapkan Pondasi Ceker ayam,
✓ Lokasi Strategis dan bebas BANJIR, Dekat ke kampus UPI Cibiru, kampus UIN, kampus Muhamadiah Soekarno Hatta, GBLA, Masjid Al-Jabar, Station Kereta Cimekar, dan station Kereta Api Cepat Tegalluar.
✓ Ready Unit dan Masa Indent dan Siap Huni Cepat (3 Bulan).
✓ Lahan sudah di split milik developer sehingga legalitas aman.
✓ Desain rumah Minimalis Milenial dan rumah sehat dengan Plafon Tinggi, lantai full granit, kusen almunium, rangka atap baja ringan, genteng beton.
✓ Potensi kenaikan harga tanah yang signifikan karena letaknya yang strategis plus terletak dilokasi berkembang, menjadi dambaan para investor karena Capital Gain segera didapat
BERBAGAI FASILITAS UMUM
❆ 2 menit ke Puskesmas Cibiru Hilir
❆ 5 menit ke jalan raya Bandung-Sumedang
❆ 8 menit dari Bunderan Cibiru
❆10 menit ke Station Kereta api cepat Tegaluar Bandung
❆15 menit ke GBLA dan masjid Al-Jabar Gedebage
❆20 menit dari gerbang tol Cileunyi
MILIKI SEGERA.. Unit Terbatas!
FITUR PROPERTI
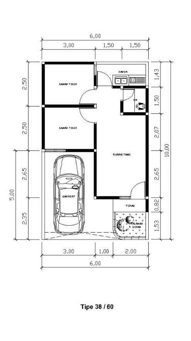
⇨ Type Rumah 40/60,⇨ Luas bangunan 40 meter, luas tanah 60 meter
⇨ Double Dinding
⇨ Spesifikasi ( dalam brosur )
⇨ Denah 2 Kamar Tidur, 1 Kamar mandi , Ruang tamu, Dapur, teras taman dan Carport
⇨ Listrik 1300 watt, Air Pompa
SKEMA PEMBAYARAN PROMO CASH , SOFTCASH, KPR BANK SYARIAH
Harga “Pasundan Village Cibiru”
• Harga Cash 398jt
• Pembelian cash mendapat diskon
• Pembelian soft cash mendapat diskon 10jt jadi 388jt, UM 150jt
Sisa 238jt dicicil sesuai kesepakatan.
• KPR syariah dengan DP 45 juta dan cicilan 3-4 jt / bulan (Tersedia pengajuan KPR Bjb syariah, BTN Syariah, Mandiri, BPR assalaM, BPR HIK,)